Dólar
Compra 37,20 Venta 39,70
9 de octubre 2022 - 17:20hs

Peñarol continúa trabajando en lo que será su Ciudad Deportiva, que quedará enfrente al Estadio Campeón del Siglo.

Cabe recordar que el proyecto es de 2018 y que el 30 de octubre de 2019, bajo la presidencia de Jorge Barrera, comenzaron las obras junto con Alejandro Ruibal, exdirigente del club y director de la empresa constructora Saceem.

“Empezamos los trabajos en esta etapa para construir dos canchas, una de césped natural y otra de sintético, en un predio de 20 hectáreas que es del club, en donde el proyecto final es la Ciudad Deportiva para la que se piensa en la construcción de nueve, 10 u 11 canchas, alguna techada, alojamiento y gimnasio, para el plantel principal y para las formativas”, explicó el dirigente de Peñarol, Alejandro Ruibal, para poner en contexto el paso que dio el club, en octubre de 2019 en una nota con Referí.

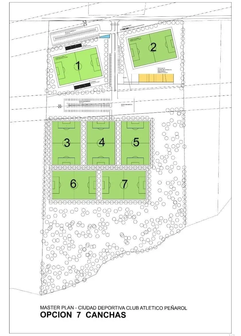
El master plan de Peñarol para lo que será su Ciudad Deportiva y la primera etapa con siete canchas

Este domingo, en Peñarol continuaron los trabajos previstos hasta la hora 18:30, según informó una fuente del club a Referí.

"Se está trabajando también los fines de semana para poder contar con las primeras siete canchas en marzo del año próximo para poder empezar a entrenar allí el primer equipo y las divisiones formativas", explicó la fuente.

Todos los socios e hinchas que lleguen temprano al Estadio Campeón del Siglo este domingo para el partido ante Plaza Colonia previsto para la hora 19.30 por la fecha 12 del Torneo Clausura, "pueden visitar las obras, y pasar por la futura ciudad deportiva ubicada frente a la Tribuna Damiani". 

La primera etapa de las obras se espera que pueda estar terminada en marzo de 2023.

En este video se puede ver cómo siguen aplanando el terreno:

Temas:

Peñarol

Seguí leyendo

EO Clips

Más noticias de Referí

Te Puede Interesar

Más noticias de Argentina

Más noticias de España

Más noticias de Estados Unidos